Search by keyword or listing ID.
Try: "Pool" or "Patio" or "Brick" or "Tudor"

$5,299,000

Taxes: $18,485

4 Bedrooms

3 Full Bathrooms
& 2 Half Baths

Exclusive Newly Listed

Spectacular Hudson River Views: Spacious & Modernized 4-Bd. Brick House with Decks, Patio, Outdoor Kitchen & Home Theater on Private Cul-de-Sac

Listing ID 1055 in Houses

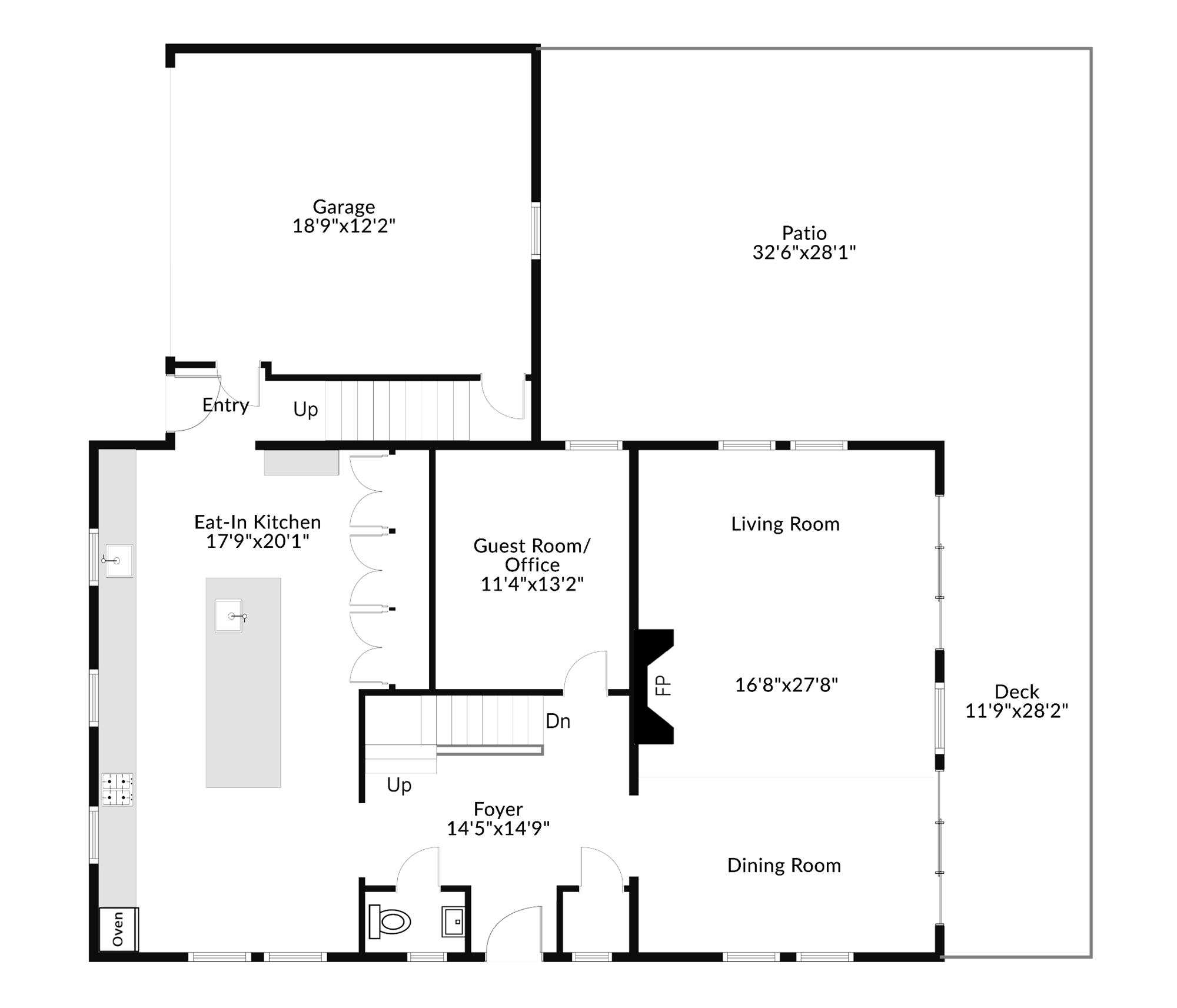
With picture-perfect Hudson River views, this spacious 4-bedroom home (plus an additional guest room) has 3 full bathrooms and 2 half bathrooms. Built on a private cul-de-sac in 1915, it was fully renovated in 2018.

A spacious Georgian Colonial clad in new tumbled brick, it enjoys a level, grassy yard, large upper and lower rear decks and a sprawling travertine patio outfitted with a full outdoor kitchen -- perfect for al fresco dining, entertaining and peaceful relaxation.

The house is characterized by large, airy, light-filled rooms, many offering direct views of the water and the great cliffs of the Palisades on the opposite shore.

Standout details include: a welcoming center hall tiled in Afyon Sugar marble; an open-plan living room-dining room with a wood-burning fireplace and a wall of windows and French doors out to the river-facing deck; a luxurious eat-in kitchen with a center island that seats 6 people, Danbury marble counters and backsplash, custom hardwood frameless cabinetry, 2 sinks and appliances by Gaggenau (2 incognito refrigerators, a freezer, induction cooktop, double gas burners, microwave, 2 wall ovens -- one of them steam -- and 2 warming drawers); main-floor office/guest room; and a windowed marble powder room.

The second floor features a master bedroom with a contemporary decorative fireplace and glass doors to a private river-facing deck. The marble master bathroom has a double-sink vanity, a soaking tub and a glass-enclosed shower. The second floor also has 2 additional bedrooms and a hallway bathroom.

The spacious third floor consists of three rooms.

A separate staircase from the main floor leads to a private 2nd-floor bedroom with its own bathroom and a windowed walk-in closet.

The basement boasts a family room with a wood-burning fireplace, a fitness room with a glass door to the rear patio and yard, a home theater (13-by-16-ft. with reclining leather seats), a laundry room and a storage room.

Interior details include hardwood floors, a central staircase with handmade wrought-iron banisters and abundant custom-fitted closets.

The outdoor kitchen has a Lynx Napoli pizza oven, a gas grill, a griddle, a gas cooktop, a refrigerator and a fireplace.

There is 4-zone HVAC, a heated travertine driveway for 2 cars and an attached 2-car garage. There is additional private parking along the north side of the house. The property measures 0.28 acres.

Conveniently located near parks, schools, Metro-North trains and Express Buses to Manhattan.

Print Version

3061 Scenic Place

Talk to Us
About This Listing

More Houses in this Price Range

Find Your Home

See the best listings for you & subscribe to receive new listings by email as they hit the market.
Click to Continue if you have already signed up.

Privacy | Terms

Copyright © 2026 by Trebach Realty, Inc.
All rights reserved.
The material on this website is for informational purposes only. It is subject to errors, omissions and revisions, and it presented without warranties. This website uses cookies. Using this site means that you accept its Terms & Conditions.